Wake Up Seattle, The City Does Not Care About Your View

Wake Up Seattle, The City Does Not Care About Your View

  • Jeff Reynolds
  • 04/2/22
 
Or do they. Lets debate.
 
How many times have we seen this? A luxury condo is built in the City of Seattle and years later a project is approved that impacts the views of many homeowners. We have heard from a number of you over the years and your message is very clear:
 
“Views don’t last forever”
“You can’t expect views to stay the same in a great city like ours”
“Not everyone buys condos for the view”
“Developers will build what it takes to make money”
“The city wants the revenue”
 
We don’t disagree with a lot of what you are saying/sharing. In fact, we encourage our readers to have opinions and to share those opinions (while respecting others). However, this post is not to simply acknowledge that another project (Escala) is going to lose their views – this post is to stir up a debate. We want to determine if Seattle’s Design Review Board is doing enough. Is the city of Seattle thoughtfully considering how the architecture of a new building could impact the existing views and sunlight of other residents?
 
Is the review board focused on the accomplishing the following:
 
  1. Allowing the applicant (Developer) to build a beautiful high-rise that compliments our skyline.
  2. Encourages the developer to design less impactful projects that allow natural light and view preservation for existing structures.
 
This questions are for you to decide – not us. We want to hear from our readers and followers. Let’s start the debate.
 
Let’s use the most notable example of an impacted condo project – The Cosmopolitan.
 
This is what the Cosmopolitan looked like 2007-2009.
 
 
This is what the Cosmopolitan looked like after an office tower was built just shortly after the condo project was completed.
 
 
It was a big point of contention between the owners at the Cosmopolitan and the City of Seattle. The distance between these two buildings is 18 feet, 6 inches. Many argued about the views and how it seemed unfair that our city would allow a project with a 16-20 foot setback to be built. We have had experience in selling units on the West side of the Cosmopolitan and the much bigger issue is the shadow effect the office tower has on the units that face the 39 story commercial structure. It is very dark, all day long. So we have to ask ourselves:
 
Was the project legally built – Yes.
Is the developer to blame – Obviously, no.
Did the city act in the best interest of the condo residents – thoughts?Could the city have encourage/demanded a more angular structure that would impact the Cosmopolitan to a lessor degree – thoughts?
 
So lets get back to the new project coming to 5th and Virginia – here is a look at the proposed project:
 
 
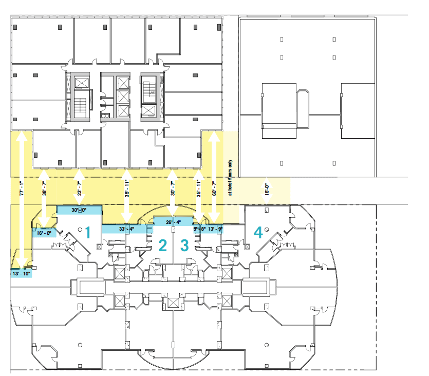
Much like the office building built next to the Cosmopolitan, Escala’s new neighbor will be a 45 story building and will have a huge impact on the residents of the newly built Seattle condo project. The proposal is for 2 floors of retail, 8 stories of hotel and 32 floors of residential apartments. Here is a look at the distance between the two buildings. As you can see in the diagram below, there is distance of just 23 feet crossing the alley between the two structures.
 
 
 
It should be noted that if you read the Downtown Design Review Board recommendations, that there are some considerations for Escala residents. The question is, are they doing enough? Share you thoughts below.
 
 

Work With Jeff

Jeff Reynolds is a distinguished real estate broker affiliated with Compass Seattle and the visionary behind UrbanCondoSpaces, the premier condo team specializing in Kirkland, Bellevue, and Seattle. UrbanCondoSpaces (UCS) is not just a team; it's a specialized blog dedicated to the intricacies of urban living. With over 18 years of expertise navigating the condo markets in Seattle, Kirkland, and Bellevue, Jeff has successfully guided numerous individuals through condo transactions. His unparalleled knowledge and unwavering commitment to clients position him as the go-to expert for condo transactions. Whether you are considering a stylish condo in Bellevue or looking to sell in Kirkland or Seattle, connect with Jeff Reynolds to ensure optimal results for your real estate endeavors.

Follow Me on Instagram